Aufstockung und energetische Sanierung eines Mehrfamilienhauses in Freiburg
Die BImA – Bundesanstalt für Immobilienaufgaben – unterhält in Freiburg einen großen Bestand an Mehrfamilienhäusern aus den 50er- und 60er-Jahren, die seinerzeit für die Familien der in Freiburg stationierten Französischen Streitkräfte errichtet wurden.
Die Dächer, Fassaden und Balkone der meisten Gebäude sind stark sanierungsbedürftig.
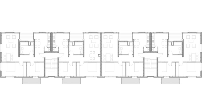
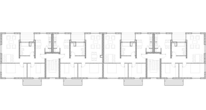
In einem Modellprojekt werden bei 2 Gebäuderiegeln mit jeweils 16 Bestandswohnungen die Dächer und Fassaden energetisch saniert.
Im Rahmen der Dachsanierung werden je Gebäuderiegel 4 neue geförderte Wohnungen geschaffen.
Die Aufstockungen werden in Holzrahmenbauweise erstellt.
Alle Wohnungen erhalten neue Stahlbalkone.
Als Fassade kommt ein Wärmedämmverbundsystem mit Edelkratzputz zum Einsatz. Dabei ergeben Bestandsgebäude und Aufstockung eine Einheit.
Daten und Fakten
Bauzeit | 06.2017 bis 05.2018
Nutzflächen | ca. 400 m² (Aufstockung)
Leistungsphasen | 5 – 8





